作品の履歴

ラグジュアリーコンドミニアムの見映え・・

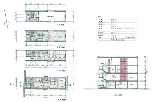
6尺間口の店舗(+住居)